产品概述:DJ41Y低温截止阀
低温截止阀适用于低温液体贮运设备的管理系统,具有开关灵活、密封可靠的特点,也可用于其他低温和深冷介质的管理系统。
产品执行标准:
设计与制造:JB/T7749-95
结构长度:GB/T12221-89
连接端:GB/T9113-2000,HG20592-97,SH3406-96GB/T12224-89
检验与试验:JB/T7749-95
产品性能参数:DJ41Y低温截止阀
|
型号 |
DJ41Y-16 |
DJ41Y-16P |
DJ41Y-25 |
DJ41Y-25P |
DJ41Y-40 |
DJ41Y-40P |
|
工作压力(MPa) |
1.6 |
2.5 |
4.0 |
|
适用温度(℃) |
-45 |
-101 |
-196 |
|
适用介质 |
液化天然气、乙烯、丙烯等低温介质 |
|
材料 |
阀体、阀盖 |
LCB |
LC3 |
LCB |
LC3 |
LCB |
LC3 |
|
阀瓣、阀座 |
铬镍钢+钴铬钨 |
|
阀杆 |
铬镍钢 |
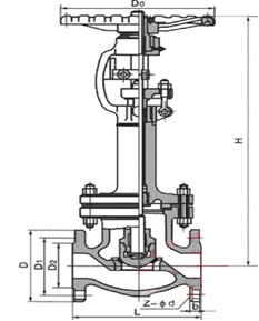
产品外形图及主要连接尺寸:DJ41Y低温截止阀
|
公称通径
DN |
连接尺寸(mm) |
H |
重量
(KG) |
|
L |
D |
D1 |
D2 |
b |
Z-φb |
Do |
-46℃ |
-101℃ |
-196℃ |
|
DJ41Y-16C DJ41Y-16P DJ41Y-16R DJ641Y-16C DJ641Y-16P DJ641Y-16R DJ641Y-16C DJ641Y-16P DJ641Y-16R |
|
50 |
230 |
160 |
125 |
100 |
16 |
4-18 |
240 |
460 |
480 |
520 |
15 |
|
65 |
290 |
180 |
145 |
120 |
18 |
4-18 |
280 |
475 |
505 |
525 |
23 |
|
80 |
310 |
195 |
160 |
135 |
20 |
8-18 |
280 |
520 |
550 |
590 |
28 |
|
100 |
350 |
215 |
180 |
155 |
20 |
8-18 |
320 |
545 |
575 |
615 |
32 |
|
125 |
400 |
245 |
210 |
185 |
22 |
8-18 |
360 |
590 |
620 |
660 |
88 |
|
150 |
480 |
280 |
240 |
210 |
24 |
8-23 |
400 |
650 |
680 |
780 |
96 |
|
200 |
600 |
335 |
295 |
265 |
26 |
12-23 |
400 |
850 |
880 |
930 |
155 |
|
250 |
730 |
405 |
355 |
320 |
30 |
12-25 |
450 |
956 |
986 |
1036 |
425 |
|
300 |
850 |
460 |
410 |
375 |
30 |
12-25 |
500 |
1095 |
1125 |
1175 |
641 |
|
DJ41Y-25C DJ41Y-25P DJ41Y-25R DJ641Y-25C DJ641Y-25P DJ641Y-25R DJ641Y-25C DJ641Y-25P DJ641Y-25R |
|
50 |
230 |
160 |
125 |
100 |
20 |
4-18 |
240 |
460 |
480 |
520 |
16 |
|
65 |
290 |
180 |
145 |
120 |
22 |
8-18 |
280 |
475 |
505 |
525 |
23 |
|
80 |
310 |
195 |
160 |
135 |
22 |
8-18 |
280 |
520 |
550 |
590 |
29 |
|
100 |
350 |
230 |
190 |
160 |
24 |
8-23 |
320 |
545 |
575 |
615 |
32 |
|
125 |
400 |
270 |
220 |
188 |
28 |
8-25 |
360 |
590 |
620 |
660 |
90 |
|
150 |
480 |
300 |
250 |
218 |
30 |
8-25 |
400 |
650 |
680 |
780 |
98 |
|
200 |
600 |
360 |
310 |
278 |
34 |
12-25 |
400 |
850 |
880 |
930 |
159 |
|
250 |
730 |
425 |
370 |
332 |
36 |
12-30 |
450 |
956 |
986 |
1036 |
436 |
|
300 |
850 |
485 |
430 |
390 |
40 |
16-30 |
500 |
1095 |
1125 |
1175 |
657 |
|
DJ41Y-40C DJ41Y-40P DJ41Y-40R DJ641Y-40C DJ641Y-40P DJ641Y-40R DJ641Y-40C DJ641Y-40P DJ641Y-40R |
|
50 |
230 |
160 |
125 |
100 |
88 |
20 |
240 |
483 |
504 |
546 |
16 |
|
65 |
290 |
180 |
145 |
120 |
110 |
22 |
280 |
499 |
530 |
551 |
24 |
|
80 |
310 |
195 |
160 |
135 |
121 |
22 |
280 |
546 |
578 |
620 |
30 |
|
100 |
350 |
230 |
190 |
160 |
150 |
24 |
320 |
572 |
604 |
646 |
33 |
|
125 |
400 |
270 |
220 |
188 |
176 |
28 |
360 |
620 |
651 |
693 |
93 |
|
150 |
480 |
300 |
250 |
218 |
204 |
30 |
400 |
683 |
741 |
767 |
100 |
|
200 |
600 |
360 |
320 |
282 |
260 |
38 |
400 |
893 |
924 |
977 |
163 |
|
250 |
730 |
425 |
385 |
345 |
313 |
42 |
450 |
1004 |
1035 |
1088 |
447 |
|
300 |
850 |
485 |
450 |
408 |
364 |
46 |
500 |
1150 |
1181 |
1234 |
673 | |