阀体: 形式:三通双座铸造阀 公称通径:25-300mm 公称压力:PM1.6 4.0 6.4MPa 连接形式:法兰式按JB78-59 JB79-59 材料:HT200 ZG230—450 ZG1Cr18Ni9Ti ZG0Cr18Ni12Mo2Ti

上阀盖: 常 温 型:-20℃-+200℃散 热 型:-40℃-+450℃ 压盖形式:螺栓压紧式 填 料:V型聚四氟乙烯填料、柔性石墨、不锈钢波纹管 阀内组件: 阀芯形式:双导向双座套筒型阀芯 流量特性:等百分比特性,线性特性和快开特性 材料:1Cr18Ni9Ti 0Cr18Ni12Mo2Ti
 执行机构: 类型:可选PS、3810、ZAZ型(DN100以内)、DKZ型(DN100以上)系列电子式直行程执行机构。防爆型选用3810系列 技术参数和性能:请参阅对应的执行机构与阀门定位器说明书。 主要零件材料及推荐使用温度范围:
阀体材料 |
公称压力MPa |
介质工作温度 |
|
< |
< |
< |
< |
< |
< |
< |
< |
< |
< |
< |
< |
< |
< |
|
120 |
200 |
250 |
300 |
350 |
400 |
425 |
450 |
475 |
500 |
525 |
550 |
575 |
600 |
|
最大工作压力MPa |
|
铸铁HT200 |
1.6 |
1.6 |
1.5 |
|
|
|
|
|
|
|
|
|
|
|
|
|
铸钢ZG25 |
4.0 6.4 |
|
4.0 6.4 |
3.7 5.9 |
3.3 5.2 |
3.0 4.7 |
2.8 4.1 |
2.3 3.7 |
1.8 2.9 |
|
|
|
|
|
|
|
不锈钢ZG1r18Ni9Ti |
4.0 6.4 |
|
|
|
|
4.0 6.4 |
3.0 4.4 |
2.7 4.2 |
2.4 4.0 |
2.1 3.8 0 |
1.9 3.5 |
1.7 3.4 |
1.4 3.2 |
1.1 2.9 |
0.8 2.6 |
ZDSF(H)型直行程分(合)流电动调节阀规格参数表:
公称通径DN |
25 |
32 |
40 |
50 |
65 |
80 |
100 |
125 |
150 |
200 |
250 |
300 |
|
阀座直径dn (mm) |
25 |
32 |
40 |
50 |
65 |
80 |
100 |
125 |
150 |
200 |
250 |
300 |
|
额定流量系数Kv |
合流 |
8.5 |
13 |
21 |
34 |
53 |
85 |
135 |
210 |
340 |
535 |
800 |
1280 |
|
分流 |
|
|
|
|
|
85 |
135 |
210 |
340 |
535 |
800 |
1280 |
|
行程mm |
16 |
25 |
40 |
60 |
100 |
|
允许压差△MPa |
≤公称压力MPa |
|
基本误差% |
±2.5 |
|
回差% |
2.5 |
|
死区% |
1.0 |
|
始终点偏差% |
±2.5 |
|
额定行程偏差% |
2.5 |
|
允许泄漏量Q |
Kv值的0.05% |
|
可调范围 |
30:1 |
|
配电动执行器型号 |
PSL |
PSL201 |
PSL202 |
PSL204 |
PSL208 |
PSL312 |
PSL320 |
|
3810L |
SA-08 |
381LSA-20 |
381LSB-30 |
381LSB-50 |
381LSC-65 |
381LSC-160 |
|
公称压力介质温度阀体材料 |
1.6MPa |
常温-20℃~+200℃ 铸铁HT200 |
|
4.0MPa |
常温-20℃~+200℃ 铸钢ZG25 铸不锈钢ZG1Cr18Ni9Ti |
|
中温-40℃~+450℃ 铸钢ZG25 铸不锈钢ZG1Cr18Ni9Ti |
|
6.4MPa |
常温-20℃~+200℃ 铸钢ZG25 铸不锈钢ZG1Cr18Ni9Ti |
|
中温-40℃~+450℃ 铸钢ZG25 铸不锈钢ZG1Cr18Ni9Ti |
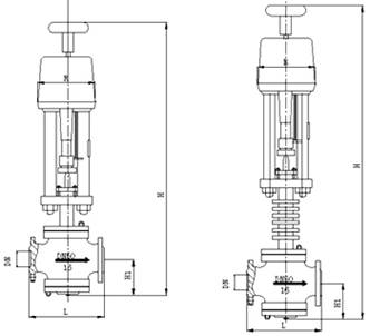
ZDSH(F)型直行程电动三通合(分)流调节阀外型尺寸表:
公称通径DN |
合流 |
分流 |
|
R |
L |
H |
H1 |
L |
H |
H1 |
|
PN(MPa) |
PN(MPa) |
PN(MPa) |
PN(MPa) |
|
|
|
|
常温 |
中温 |
|
|
|
|
|
|
常温 |
中温 |
|
|
|
|
25 |
176 |
185 |
190 |
200 |
600 |
650 |
140 |
150 |
160 |
185 |
190 |
200 |
600 |
650 |
140 |
150 |
160 |
|
32 |
176 |
200 |
200 |
210 |
718 |
848 |
150 |
160 |
170 |
200 |
200 |
210 |
718 |
848 |
150 |
160 |
170 |
|
40 |
176 |
220 |
230 |
235 |
795 |
925 |
160 |
170 |
180 |
220 |
235 |
235 |
795 |
925 |
160 |
170 |
180 |
|
50 |
176 |
250 |
255 |
265 |
835 |
960 |
180 |
190 |
200 |
250 |
255 |
265 |
835 |
960 |
180 |
190 |
200 |
|
65 |
176 |
275 |
285 |
295 |
1067 |
1214 |
200 |
210 |
220 |
275 |
285 |
295 |
1067 |
1214 |
200 |
210 |
220 |
|
80 |
176 |
300 |
310 |
320 |
1080 |
1243 |
210 |
230 |
240 |
300 |
310 |
320 |
1102 |
1265 |
225 |
250 |
265 |
|
100 |
176 |
350 |
360 |
370 |
1094 |
1257 |
220 |
250 |
260 |
350 |
360 |
370 |
1131 |
1294 |
245 |
275 |
285 |
|
125 |
225 |
410 |
430 |
440 |
1292 |
1492 |
260 |
300 |
300 |
410 |
425 |
440 |
1329 |
1529 |
285 |
320 |
325 |
|
150 |
225 |
450 |
465 |
475 |
1321 |
1520 |
280 |
320 |
320 |
450 |
460 |
475 |
1358 |
1557 |
305 |
340 |
345 |
|
200 |
225 |
550 |
560 |
570 |
1400 |
1597 |
320 |
380 |
380 |
550 |
560 |
570 |
1445 |
1642 |
350 |
400 |
410 |
|
250 |
225 |
635 |
660 |
670 |
|
|
|
474 |
474 |
635 |
660 |
670 |
|
|
|
|
|
|
300 |
225 |
720 |
740 |
770 |
|
|
|
584 |
584 |
720 |
740 |
770 |
|
|
|
|
|
型号编制说明:
Z |
D |
S |
F |
40 |
P |
G |
|
自控阀门 |
执行机构类型: |
位移特征: |
阀门结构形式 |
公称压力: |
阀体材质: |
温度类型: |
|
|
D:表示PS系列 |
S:表示直行程 |
F:表示分流阀 |
16:表示1..6MP |
C:表示碳钢 |
G:表示中温型 |
|
|
R:表示3810系列 |
|
H:表示合流阀 |
40:表示4..0MP |
P:表示不锈钢 |
常温省略 |
|
|
H:表示DKZ系列 |
|
|
64:表示6.4MP |
铸铁省略 |
|
|
|
C:表示ZAZ系列 |
|
|
|
| |