 阀体: 公称通径:15~200mm 公称压力:PN1.6 4.0 6.4MPa 连接形式:法兰式按JB78-59 JB79-59 材 料:WCB,HT200 ,ZG1Cr18Ni9Ti, ZG0Cr18Ni12Mo2Ti,衬四氟乙烯,CF8(304), CF8M(316) ,CF3M(316L) 温度范围:常温-20℃~+180℃ 中温-40℃~+350℃ 填料:V型聚四氟乙烯填料,含浸聚四氟乙烯填料, 石棉编织填料,柔性石墨。
阀内组件: 阀芯型式:O型阀芯 流量特性:快开特性 材 料:ICr18Ni9Ti , 0Cr18Ni12Mo2Ti 阀座材料:聚四氟乙烯(PTFE),特制PPL,金属阀座 可 调 比:350:1 执行机构: 气缸工作压力:0.4~0.7Mpa 气缸开关时间:双作用式1~5秒 气缸空气耗量:1~131L 电磁阀 电 源:220VAC,24VDC 气 缸 形 式:单缸式或双缸式 流量特性Kv值:
公称通径(DN) |
不同开度角下的Kv值 |
|
温度 |
10o |
20o |
30o |
40o |
50o |
60o |
70o |
80o |
90o |
|
50 |
2 |
4 |
9 |
17 |
32 |
60 |
97 |
151 |
215 |
|
80 |
6 |
11 |
22 |
44 |
83 |
155 |
250 |
389 |
550 |
|
100 |
9 |
18 |
35 |
71 |
133 |
248 |
398 |
620 |
890 |
|
150 |
20 |
40 |
80 |
160 |
300 |
560 |
900 |
1400 |
2000 |
|
200 |
36 |
72 |
143 |
286 |
737 |
1002 |
1611 |
2506 |
3580 |
|
250 |
57 |
113 |
226 |
453 |
848 |
1582 |
2543 |
3955 |
5650 |
|
300 |
81 |
163 |
325 |
651 |
1220 |
2278 |
3661 |
5695 |
8100 |
规格性能表:
公称通径DN |
15 |
20 |
25 |
32 |
40 |
50 |
65 |
80 |
100 |
125 |
150 |
200 |
|
流量系数(Kv) |
20 |
38 |
72 |
110 |
170 |
215 |
380 |
550 |
890 |
1400 |
2000 |
3580 |
|
动作范围 |
0-90 |
|
允许压差ΔP |
小于公称压力(1.6MPa) |
|
泄漏量Q |
按API598标准测试 无泄漏 |
|
基本误差 |
2% 带定位器 |
|
回差 |
2% 带定位器 |
|
死区 |
0.6% 带定位器 |
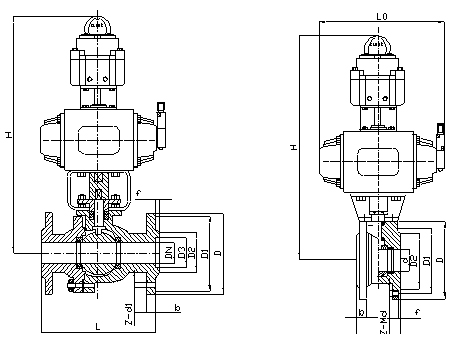
QGT641F法兰式气动球阀: 安装尺寸QGT641F-16(1.6MPa)、25(2.5Mpa)、40(4.0MPa)型气动球阀,主要外形连接尺寸
DN |
L |
H |
D |
D1 |
D2 |
b |
f |
D3 |
Z-d1 |
|
15 |
130/130/140 |
279 |
95 |
65 |
45 |
14/16/16 |
2 |
40 |
4-Φ14 |
|
20 |
140/140/150 |
282 |
105 |
75 |
55 |
14/16/16 |
2 |
51 |
4-Φ14 |
|
25 |
150/150/165 |
295 |
115 |
85 |
65 |
14/16/16 |
2 |
58 |
4-Φ14 |
|
32 |
165/165/180 |
298 |
135 |
100 |
78 |
16/18/18 |
2 |
66 |
4-Φ18 |
|
40 |
180/180/200 |
325 |
145 |
110 |
85 |
16/18/18 |
3 |
76 |
4-Φ18 |
|
50 |
200/200/220 |
332 |
160 |
125 |
100 |
16/20/20 |
3 |
88 |
4-Φ18 |
|
65 |
220/220/250 |
422 |
180 |
145 |
120 |
18/22/22 |
3 |
110 |
4-Φ18/8-Φ18/8-Φ18 |
|
80 |
250/250/280 |
558 |
195 |
160 |
135 |
20/22/22 |
3 |
121 |
8-Φ18 |
|
100 |
280/280/320 |
573 |
215/230/230 |
180/190/190 |
155/160/160 |
20/24/24 |
3 |
150 |
8-Φ18/8-Φ23/8-Φ23 |
|
125 |
320/320/360 |
605 |
245/270/270 |
210/220/220 |
185/188/188 |
24/28/30 |
3 |
176 |
8-Φ18/8-Φ25/8-Φ25 |
|
150 |
360/360/400 |
644 |
280/300/300 |
295/310/320 |
210/218/218 |
24/28/30 |
3 |
204 |
8-Φ23/8-Φ25/8-Φ25 |
|
200 |
400/400/550 |
850 |
335/360/375 |
295/310/320 |
265/278/282 |
26/34/38 |
3 |
260 |
12-Φ23/12-Φ25/12-Φ30 |
注:表中数据xx/xx/xx分别为压力1.6MPa、2.5MPa、4.0MPa。L结构长度数据可以户提供。 QGT671F对夹式超短型气动球阀: 主要外形和连接尺寸:QGT671F-16(1.6MPa)、25(2.5MPa)、4.(4.0MPa) 注:表中数据XX/XX分别为压力1.6MPa、2.5MPa
DN |
d |
L |
H |
D |
D1 |
D2 |
b |
f |
L0 |
Z-Md |
|
15 |
14 |
35 |
328 |
90 |
65 |
45 |
14/16 |
2 |
180 |
4-M12 |
|
20 |
19 |
38 |
335 |
100 |
75 |
55 |
14/16 |
2 |
180 |
4-M12 |
|
25 |
25 |
42 |
350 |
110 |
85 |
65 |
14/16 |
2 |
180 |
4-M12 |
|
32 |
29 |
50 |
380 |
130 |
100 |
78 |
16/18 |
2 |
220 |
4-M16 |
|
40 |
38 |
60 |
410 |
145 |
110 |
85 |
16/18 |
3 |
220 |
4-M16 |
|
50 |
48 |
70 |
442 |
160 |
125 |
100 |
16/20 |
3 |
260 |
4-M16 |
|
65 |
64 |
95 |
452 |
180 |
145 |
120 |
18/22 |
3 |
260 |
4/8-M16 |
|
80 |
76 |
118 |
495 |
190 |
160 |
135 |
20/22 |
3 |
296 |
8-M16 |
|
100 |
95 |
140 |
538 |
215/230 |
180/190 |
155/160 |
20/24 |
3 |
350 |
8-M16/20 |
|
125 |
118 |
175/195 |
585 |
245/270 |
210/220 |
185/188 |
24/28 |
3 |
350 |
8-M16/24 |
|
150 |
150 |
210/260 |
708 |
280/300 |
240/250 |
210/218 |
24/28 |
3 |
439 |
8-M20/24 |
三片式气动球阀: 主要外形尺寸和连接尺寸:QGT611F-25(2.5MPa)、40(4.0MPa)、64(6.4MPa)型气动球阀

DN |
G |
d |
L |
L0 |
H |
|
15 |
1/2″ |
15 |
75 |
180 |
280 |
|
20 |
3/4″ |
20 |
80 |
180 |
285 |
|
25 |
1″ |
25 |
90 |
180 |
295 |
|
32 |
11/4″ |
32 |
110 |
220 |
300 |
|
40 |
11/2″ |
40 |
120 |
220 |
312 |
|
50 |
2″ |
50 |
140 |
260 |
320 |
型号编制说明:
Q |
GT |
6 |
71 |
F |
16 |
C |
G |
|
阀门代号 |
|
执行 机构: |
连接 形式: |
密封面材质: |
公称压力: |
阀体材质: |
温度类型: |
|
Q:表示球阀 |
|
6:表示气动 |
71:表示 对夹式 |
F:表示四氟乙烯 |
16:表示1.6MPa |
C:表示碳钢 |
G:表示中温型 |
|
|
|
|
41:表示法兰 |
H:表示金属密封 |
25:表示2.5MPa |
P:表示不锈钢 |
常温省略 |
|
|
|
|
11:表示丝扣 |
|
40:表示4.0MPa |
|
|
|
|
|
|
|
|
64:表示6.4MPa |
|
| |