阀体: 形式:角型单座铸造阀 公称通径:20-300mm 公称形式:PN1.6 4.0 6.4Mpa 连接形式:法兰式按JB78-59 JB79-59 材料:HT200 ZG230—450 ZG1Cr18Ni9Ti ZG0Cr18Ni12Mo2Ti 阀内组件: 阀芯形式: O型阀芯 流量特性: 快开型 材 料: 1Cr18Ni9Ti 0Cr17Ni12Mo2衬聚四氟乙烯 密封面材料:聚四氟乙烯、PPL、硬密封

具有理想流量特性表:
公称通径(DN) |
不同开度角下的Kv值 |
|
温度 |
10o |
20o |
30o |
40o |
50o |
60o |
70o |
80o |
90o |
|
50 |
2 |
4 |
9 |
17 |
32 |
60 |
97 |
151 |
215 |
|
80 |
6 |
11 |
22 |
44 |
83 |
155 |
250 |
389 |
550 |
|
100 |
9 |
18 |
35 |
71 |
133 |
248 |
398 |
620 |
890 |
|
150 |
20 |
40 |
8/0 |
160 |
300 |
560 |
900 |
1400 |
2000 |
|
200 |
36 |
72 |
143 |
286 |
737 |
1002 |
1611 |
2506 |
3580 |
|
250 |
57 |
113 |
226 |
453 |
848 |
1582 |
2543 |
3955 |
5650 |
|
300 |
81 |
163 |
325 |
651 |
1220 |
2278 |
3661 |
5695 |
8100 |
执行机构: 类型:可选PSQ、DTR和3810系列电子式角行程执行机构。防爆型选用3810系列。 技术参数和性能:请参阅相应执行机构与阀门定位器说明书。 电动调节球阀规格参数:
公称通径DN |
15 |
20 |
25 |
32 |
40 |
50 |
65 |
80 |
100 |
125 |
150 |
200 |
250 |
300 |
|
流量系数(Kv) |
20 |
38 |
72 |
110 |
170 |
215 |
380 |
550 |
890 |
1400 |
2000 |
3580 |
5650 |
8100 |
|
可调动作范围 |
0-90o |
|
允许压差△P |
小于公称压力(1.6MPa) |
|
泄漏量Q |
按AP1598标准测试 无泄漏 |
|
环境温度℃ |
-20~60℃ |
|
基本误差 |
±2.5% |
|
回差 |
±2.5% |
|
死区 |
1% |
|
可调范围 |
250:1 |
350:1 |
|
配用执行机构 |
PSQ101, 381RSA-05DTR-05 |
DTR-10 PSQ201, DTR-20381RSC-30 |
DTR-40381RSC-50 |
PSQ701DTR-60 |
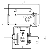
ZAJQ941型电动球阀外形尺寸:
公称通径DN |
L |
D |
H |
L1 |
D1 |
b |
Z-Ød |
H1 |
L2 |
|
压力 |
1.6/2.5/4.0 |
1.6/2.5/4.0 |
|
|
1.6/2.5/4.0 |
1.6/2.5/4.0 |
1.6/2.5/4.0 |
|
|
|
15 |
130/130/130 |
95 |
275 |
157 |
65 |
14/16/16 |
4-14 |
48 |
208 |
|
20 |
140/140/140 |
105 |
280 |
157 |
75 |
14/16/16 |
4-14 |
53 |
208 |
|
25 |
150/150/150 |
115 |
287 |
157 |
85 |
14/16/16 |
4-14 |
58 |
208 |
|
32 |
165/165/180 |
135 |
384 |
208 |
100 |
16/18/18 |
4-18 |
68 |
208 |
|
40 |
180/180/200 |
145 |
312 |
208 |
110 |
16/18/18 |
4-18 |
73 |
208 |
|
50 |
200/200/220 |
160 |
325 |
208 |
125 |
16/20/20 |
4-18 |
80 |
208 |
|
65 |
220/220/250 |
180 |
335 |
256 |
145 |
18/22/22 |
4-18/8-18/8-18 |
90 |
256 |
|
80 |
250/250/280 |
195 |
365 |
256 |
160 |
20/22/22 |
8-18 |
98 |
256 |
|
100 |
280/280/320 |
215/230/230 |
400 |
256 |
180/190/190 |
20/24/24 |
8-18/8-23/8-23 |
120 |
256 |
|
125 |
320/320/400 |
245/270/270 |
420 |
256 |
210/220/220 |
24/28/30 |
8-23/8-25/8-25 |
140 |
256 |
|
150 |
360/360/400 |
280/300/300 |
440 |
256 |
240/250/250 |
24/28/30 |
8-23/8-25/8-25 |
167 |
256 |
|
200 |
400/400/550 |
335/360/375 |
470 |
256 |
295/310/320 |
26/34/38 |
12-23/12-25/12-30 |
210 |
256 |
|
250 |
630 750 |
405 470 |
545 |
380 |
|
|
|
|
|
|
300 |
750 870 |
460 530 |
580 |
380 |
|
|
|
|
|
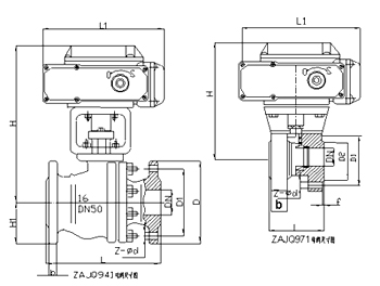
ZAJQ971超短型电动对夹式球阀外形尺寸:
公称通径 DN |
L |
H |
D |
D1 |
D2 |
b |
f |
L1 |
Z-Ød |
|
15 |
35 |
275 |
90 |
65 |
45 |
14/16 |
2 |
157 |
4-12 |
|
20 |
38 |
280 |
100 |
75 |
55 |
14/16 |
2 |
157 |
4-12 |
|
25 |
42 |
287 |
110 |
85 |
65 |
14/16 |
2 |
157 |
4-12 |
|
32 |
50 |
297 |
130 |
100 |
78 |
16/18 |
2 |
208 |
4-16 |
|
40 |
60 |
312 |
145 |
110 |
85 |
16/18 |
3 |
208 |
4-16 |
|
50 |
70 |
325 |
160 |
125 |
100 |
16/20 |
3 |
256 |
4/8-16 |
|
65 |
95 |
335 |
180 |
145 |
120 |
18/22 |
3 |
256 |
4/8-16 |
|
80 |
118 |
365 |
190 |
160 |
135 |
20/22 |
6 |
256 |
8-16 |
|
100 |
140 |
400 |
215/230 |
210/220 |
155/160 |
20/28 |
3 |
256 |
8-16/20 |
|
125 |
175/195 |
420 |
245/270 |
210/220 |
185/188 |
24/28 |
3 |
256 |
8-16/24 |
|
150 |
210/260 |
440 |
280/300 |
240/218 |
210/218 |
24/28 |
3 |
256 |
8-20/24 |
注:表中数据XX/XX表示压力:1.6MPa/2.5MPa ZAJQ911型三片式电动丝扣式球阀外形尺寸:
公称通径DN |
G |
L |
H |
L1 |
|
15 |
1/2” |
75 |
275 |
157 |
|
20 |
3/4” |
80 |
280 |
157 |
|
25 |
1” |
90 |
287 |
157 |
|
32 |
1 1/4” |
40 |
297 |
208 |
|
40 |
1 1/2” |
120 |
312 |
208 |
|
50 |
2” |
140 |
325 |
208 |
型号编制说明:
Z |
A |
J |
Q |
9 |
41 |
F |
25 |
C |
G |
|
自控阀门 |
执行机构类型: |
位移特征: |
阀门代号: |
传动方式: |
连接形式: |
密封面材料: |
公称压力: |
阀体材质: |
温度类型: |
|
|
D:表示PS系列 |
J:角行程 |
Q:表示球阀 |
9表示电动 |
41:表示法兰 |
F:表示四氟乙稀 |
16:表示1.6MPa |
C:表示碳钢 |
G:表示中温型 |
|
|
R:表示3810系列 |
S:直行程 |
D:表示碟阀 |
6:表示气动 |
11:表示丝扣 |
H:表示金属硬密封 |
25:表示2.5MPa |
P:表示不锈钢 |
常温省略 |
|
|
A:DTR系列 |
|
V:表示V形球阀 |
|
71:表示对夹式 |
|
40:表示4.0MPa |
S:表示塑料 |
|
|
|
|
|
|
|
|
|
64:表示6.4MPa |
F46:表示阀体衬四氟 | |